| Prijs | € 125.000,- k.k. |
| Type object | Woonhuis, stacaravan, vrijstaande woning |
| Recreatie object | |
| Perceeloppervlakte | 353 m² |
| Woonoppervlakte | 63 m² |
| Aanvaarding | In overleg |
| Status | Verkocht onder voorbehoud |
Aan de bosrand van het gezellige visserstadje Harderwijk vindt u vakantiepark “Het Verscholen Dorp”. Op dit mooi aangelegde park met verwarmd buitenbad en tennisbaan mogen wij u dit leuke L-chalet aanbieden op 353m² eigen grond.
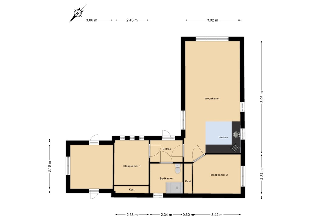
Entree, hal met garderobe en toegang tot de royale woonkamer met schuifpui naar het terras en fraaie open keuken in lichte kleurstelling, welke is voorzien van diverse (inbouw)apparatuur. Voorts twee comfortabele slaapkamers, beide met een vaste kastenwand en, eveneens vanuit de hal toegankelijk, de ruime badkamer met wastafelmeubel, douchecabine en het toilet.
Zonnig gesitueerde tuin met berging en verdekt opgesteld tuinhuisje, en een parkeerplek voorde deur op eigen terrein. . De tuin heeft wat aandacht nodig maar voor een liefhebben met groene vingers is het een koud kunstje om hier weer een prachtig plaatje van te maken.
Bent u op zoek naar een fijn chalet op een mooi verzorgd park, in de nabijheid van bossen, water, heidevelden, zandverstuivingen én stadse gezelligheid, dan nodigen wij u van harte uit voor een bezichtiging.
| Referentienummer | 00180 |
| Vraagprijs | € 125.000,- k.k. |
| Inrichting | Niet gestoffeerd |
| Inrichting | Niet gemeubileerd |
| Status | Verkocht onder voorbehoud |
| Aanvaarding | In overleg |
| Aangeboden sinds | Maandag 6 oktober 2025 |
| Laatste wijziging | Dinsdag 21 april 2026 |
| Type object | Woonhuis, stacaravan, vrijstaande woning |
| Soort bouw | Bestaande bouw |
| Bouwperiode | 1995 |
| Dakbedekking | Gewalst materiaal |
| Type dak | Schilddak |
| Isolatievormen | Dubbel glas Muurisolatie |
| Perceeloppervlakte | 353 m² |
| Woonoppervlakte | 63 m² |
| Inhoud | 153 m³ |
| Aantal bouwlagen | 1 |
| Aantal kamers | 3 (waarvan 2 slaapkamers) |
| Aantal badkamers | 1 |
| Ligging | Buiten bebouwde kom In bosrijke omgeving |
| Type | Tuin rondom |
| Oriëntering | Noord-oost |
| Staat | Verwaarloosd |
| Energielabel | C |
| CV ketel | Rehmea Tzerra |
| Warmtebron | Gas |
| Bouwjaar | 2013 |
| Combiketel | Ja |
| Aantal parkeerplaatsen | 1 |
| Verwarmingssysteem | Centrale verwarming |
| Badkamervoorzieningen | Douche Toilet Wastafelmeubel |
| Tuin aanwezig | Ja |
| Heeft schuur/berging | Ja |
| Kadastrale aanduiding | Harderwijk C 1557 |
| Perceeloppervlakte | 353 m² |