Beschrijving
Op het rustig gelegen villapark “Buitenplaats Horsterwold”, met zwembad en tennisbanen, vindt u deze bijzonder royale en goed onderhouden recreatievilla op een prachtig gesitueerd perceel van ruim 754m² eigen grond.
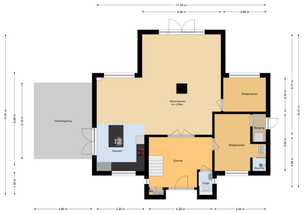
Indeling
Imposante entree met hardhouten trappartij, garderobe, toilet en de eerste tweepersoons slaapkamer met badkamer en separate wasruimte.
Voorts heeft u via dubbele deuren de toegang tot de royale living met vrijstaande houtkachel, eethoek en een luxe, verdekt opgestelde keuken met kookeiland en alle wenselijke inbouwapparatuur.
Via de tuindeur bij de keuken bereikt u het grote overdekte terras en prachtige tuin, waarover zo meer…
Op de begane grond bevindt zich een tweede tweepersoons slaapkamer, bereikbaar vanuit de woonkamer.
Eerste verdieping
Een vide als overloop met zicht op de entree en toegang tot drie heel comfortabele slaapkamers en de grote badkamer met vrijstaand ligbad, inloopdouche, wastafel en het toilet.
Op de overloop bevindt zich tevens de stookruimte/bergkast.
Tweede verdieping
Vanuit een van de slaapkamers op de verdieping bereikt u via een vaste trap nog een fijne slaapzolder met dakraam.
Tuin
Prachtige, geheel besloten en heel gezellige tuin op het zuiden met diverse zitjes, gazon en veel volgroeide en groenblijvende (haag)beplanting.
Werkelijke een genot om hier je welverdiende vrije tijd door te mogen brengen en te kunnen genieten van alle luxe, waaronder een buiten sauna, een buiten ligbad en een buiten douche.
En voor de kinderen een leuk speeltoestel en een ingegraven trampoline om lekker op los te gaan.
Bijzonderheden
Dit sfeervolle landhuis biedt nu 14 vaste slaapplaatsen en wordt succesvol verhuurd aan grote gezinnen, families en zakelijke groepen. Uiteraard kunt u hier ook zonder verhuur zelf genieten van alle comfort en luxe, want u heeft de volledige vrijheid om wel óf niet (in eigen beheer) te verhuren.
Voor een goede eerste indruk en een impressie van dit bijzondere object en alle vertrekken verwijzen wij u graag naar de foto’s en de plattegronden.
Maar bent u nu al nieuwsgierig en zou u deze mooie recreatievilla eens willen bezichtigen, neem dan gerust contact ons op.
Plattegronden
2D plattegrond begane grond - Bosruiterweg 25-12 te Zeewolde.jpg
3D plattegrond begane grond - Bosruiterweg 25-12 te Zeewolde.jpg
2D plattegrond verdieping - Bosruiterweg 25-12 te Zeewolde.jpg
3D plattegrond verdieping - Bosruiterweg 25-12 te Zeewolde.jpg
2D plattegrond vliering - Bosruiterweg 25-12 te Zeewolde.jpg
2D plattegrond berging - Bosruiterweg 25-12 te Zeewolde.jpg
2D plattegrond perceel met woning - Bosruiterweg 25-12 te Zeewolde.jpg